Controlling Stray Current

C-Probe Technologies Ltd has undertaken monitoring on manual site visits in 1990, 1992, 1994 and 1997. Example data can be viwed in graphical form demonstrating the measurements taken with respect to corrosion potential and corrosion current (rate) for the monitoring visit performed in 1994 on the Brickpit Wall at Folkestone Terminal..

Moreover, data are shown taken in the same visit showing the effects on measured corrosion potential during the passage of trains along the reinforced earth structure.

 

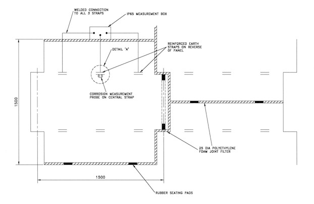
Monitoring methods have certainly been sophisticated (possibly radical) for this type of structure but made possible by the choice of the sensor (a three-electrode sensor assembly). This allows both 2 and 3 electrode AC and DC electrochemical evaluations to be undertaken.

 


At various intervals techniques investigated have involved:
  1. Background and evolving corrosion potential measurements
  2. Linear polarisation resistance method
  3. Faradaic dynamic harmonic analysis
  4. Direct capture of corrosion activity as trains pass.

Although the data and trending are confidential, examples of typical data are presented for the reader to consider.

To date, the structures have performed well and assessment is ongoing within the confines of manual assessment.

Upgrade to remote and automated monitoring is a consideration with alarming of events a logical progression. It is stressed however that to date no serious "event" has taken place.

ChnlTnl#1.jpg (26936 bytes)

 

Back Main Aims Index Next